
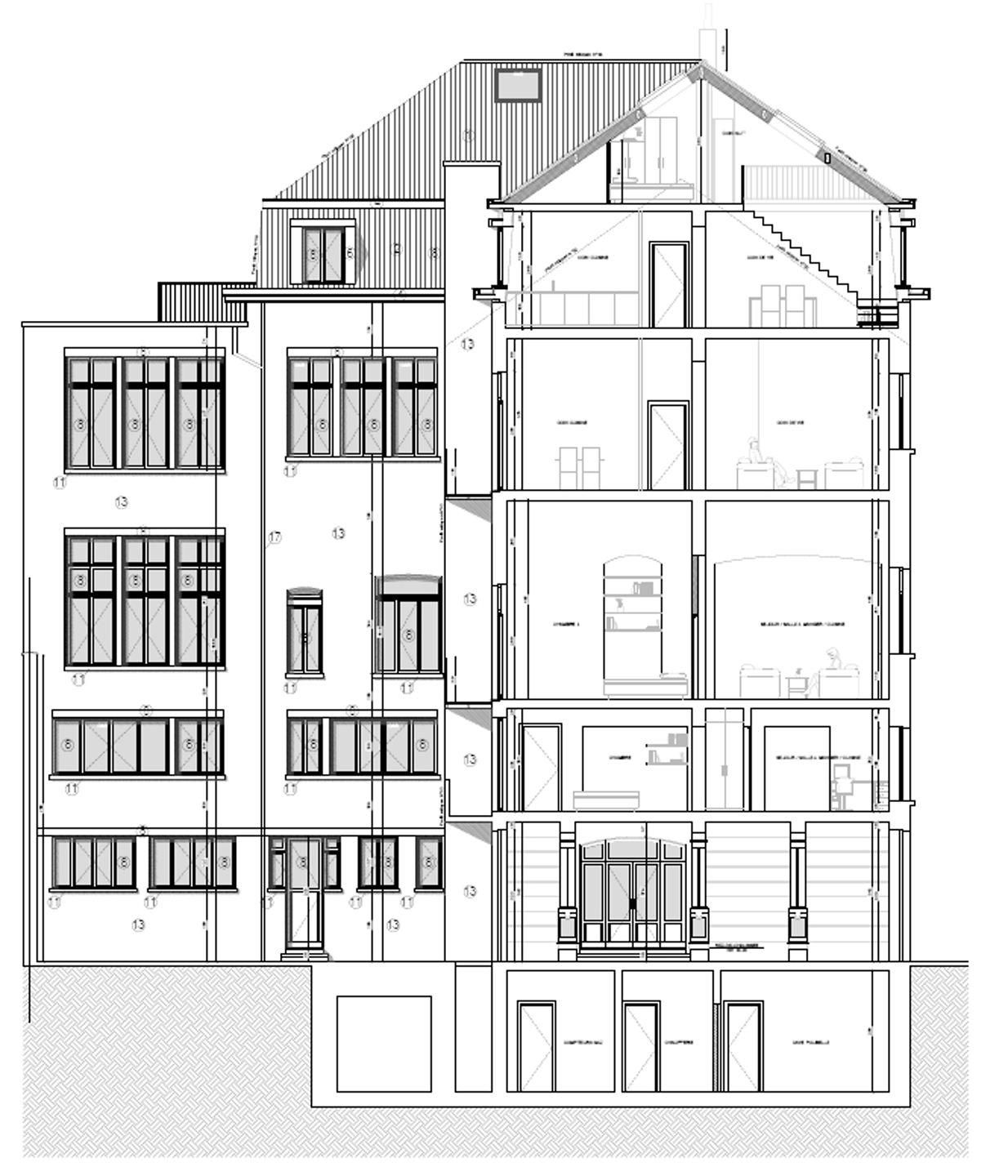
*** sales agreement in progress *** Saint-Gilles - Bosquet, close to Place Stéphanie and Goulet Louise, elegant hôtel de maître with building permit, with a total gross floor area of ± 1.017 m² on 5 floors + roofs. Currently divided into 12 unrecognized units, furnished rentals and minor renovation over the years. Building permit for 7 apartments + 1 office, with a net surface area of ± 620 m² developed as follows : 2 studios (47 - 61 m²), 1 x 1bedroom (51 m²), 3 x 2bedrooms (90 - 81 - 80 m²), 1 x 3bedrooms (170 m²), office (37 m²), cellars, courtyard and garden. Attractive neighborhood close to all facilities : transport/shops/restaurants/... For more information and plans, contact +32 478 31 56 71 or info@irisproperty.be
Rue Bosquet 34 - 1060 Saint-Gilles
Reference | 6529188 |
---|---|
Category | Multi-purpose building |
Number of bedrooms | 12 |
Number of bathrooms | 7 |
Garage | No |
Terrace | Yes |
Parking | No |
Habitable surface | 620 m² |
Ground surface | 230 m² |
Availability | at the contract |
Construction year | 1870 |
---|---|
Number of garages | 0 |
Type of roof | slooping roof |
Number of floors | 5 |
---|
Access for people with handicap | No |
---|---|
Kitchen | Yes |
Type (ind/coll) of heating | collective |
Elevator | No |
Double glass windows | Yes |
Type of heating | gas |
Type of kitchen | semi fitted |
Bathroom (type) | shower |
Intercom | Yes |
Width at the street | 8.32 |
---|---|
Built surface (surf. main building) | 1017 |
Number of toilets | 12 |
Number of showerrooms | 12 |
Shops (distance (m)) | 200 |
---|---|
Public transports (distance (m)) | 180 |
Nearby shops | Yes |
Nearby schools | Yes |
Nearby public transports | Yes |
Pool | No |
---|
VAT applied | No |
---|---|
Property occupied | Yes |
Easement | No |
---|---|
Summons | No |
Building permission | Yes |
Parcelling permission | No |
Purpose of the building (type) | independant + housing |
Urbanistic use (destination) | living zone |
Intimation | No |
Sewage | Yes |
---|---|
Electricity | Yes |
Cable television | Yes |
Gas | Yes |
Water | Yes |
Type of frames | wood |
---|
Type of environment | residential area |
---|---|
Orientation of the front | north |
Land registry income (€) (amount) | 3963 € |
---|
Yes/no of electricity certificate | yes, not conform |
---|
Attics | Yes |
---|---|
Cellars | Yes |
Energy certif. class | G |
---|