
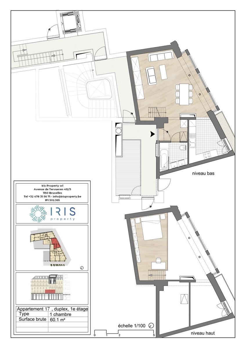
Gelegen op 50 meter van de BEURS, dicht bij de hipste winkels van de stad, op een paar minuten lopen van de bars en restaurants van Grote Markt, Saint-Géry en het Place Sainte-Catherine. In een prachtig neoklassiek gebouw volledig gerenoveerd in 2013, zal u verleid worden door het comfort en de stijl van dit prachtige appartement LOFT van ± 60 m² met hoge plafonds van ± 4 meter ! Het bestaat uit : inkomhal, woonkamer van ± 31 m², ingerichte keuken van ± 9 m², 1 slaapkamer van ± 14 m², badkamer en kelder. Bekijk het VIRTUELE BEZOEK ! Elektriciteitscertificaat conform, ventilatie, dubbele beglazing, hoge plafonds van ± 4 meter, eiken vloeren, verkocht met meubels, ... Info & bezoek op +32 478 31 56 71 of info@irisproperty.be
Referentie | 4610408 |
---|---|
Categorie | Appartement |
Gemeubeld | Ja |
Aantal kamers | 1 |
Aantal badkamers | 1 |
Bewoonbare oppervlakte | 60 m² |
Beschikbaarheid | vanaf akte |
Verdieping | 1 |
---|---|
Verdiepingen - aantal | 5 |
Bebouwde oppervlakte (opp.hoofdgebouw) | 60 |
---|---|
Toiletten - aantal | 1 |
Slaapkamer 1 (oppervlakte) | 14 m² |
Woonkamer (oppervlakte) | 31 m² |
Badkamer (oppervlakte) | 5 m² |
Geventileerde ruimte | Ja |
---|
Keuken | Ja |
---|---|
Type verwarming (type (ind/coll)) | collectief |
Lift | Ja |
Dubbele beglazing | Ja |
Type verwarming | gas |
Keuken - type | geïnstalleerd |
Badkamer (type) | douche in bad |
Videofoon | Ja |
Toegangscontrole | Ja |
---|---|
Bewaking | Ja |
Servitude | Nee |
---|---|
Vonnissen | Nee |
Bouwvergunning | Ja |
Bestemming gebouw - type | privé - woning |
Dagvaarding | Nee |
Riolering | Ja |
---|---|
Elektriciteit | Ja |
Telefoonbekabeling | Ja |
Water | Ja |
Telefooncentrale | Ja |
---|---|
Type schrijnwerkerij | hout |
Type buurt | stadskern |
---|---|
Oriëntatie van de voorgevel | zuid |
Kadastraal inkomen (€) - bedrag | 745 € |
---|
Winkels in de buurt | Ja |
---|---|
Scholen in de buurt | Ja |
Openbaar vervoer in de buurt | Ja |
Sportcentrum in de buurt | Ja |
Elektriciteitskeuring beschikbaar (ja/nee) | ja, conform |
---|
EPC-klasse | E |
---|---|
EPC (Kwh/m²/j) | 222 |
CO2 uitstoot | 44 |
EPC unieke code | 20171208-0000517106-01-4 |